Description
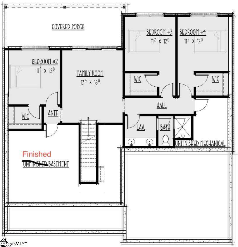
Offering a To Be Built +/-3100sqft home on 5 beautiful acres in Landrum! Plan features 4 bedrooms, 2.5 baths plus huge recreation room and a wonderful Terrace Level layout with the primary suite and primary living area on the main level along with 3 bedrooms, rec room, second living room, second deck, and tons of storage on the lower level. We will create the curb appeal showing off white Hardi plank siding with black windows and gutters, large front porch, and beautiful landscaping. The main level offers an open concept, wood flooring, fireplace with mantle, lots of windows, and large dining room. The Kitchen will be a knockout! Tons of close-soft cabinets and counter space, a massive eat-at island, stone counters, tile backsplash, farmhouse sink, and stainless-steel appliances. My personal favorite is the appliance closet/pantry with built-in shelving and extra outlets to keep appliances tucked away and the kitchen uncluttered. The massive upper deck off the main level is a peaceful haven overlooking the wooded lot and creek. The Primary Suite is on the main level and offers a vaulted ceiling, huge walk-in closet with built-in shelving, pocket door leading to the spa-like bathroom with frameless glass double head shower, beautiful tilework, dual vanity and water closet. The main level also offers a 1/2 bath and large laundry room. Downstairs, there is a second living room with a 3-panel full light glass door to the massive lower deck. The 3 additional bedrooms each have a walk-in closet and forest views. The Recreation room is huge and has a large closet as well. The guest bath offers a dual vanity and three-sided tile tub/shower combo. There is TONS of STORAGE with an unfinished mechanical room including the Tankless Water Heater for endless hot water but also a large 16x5 unfinished room off the leisure space. This room could easily be converted to a Wine Cellar or whatever your heart desires! There is also a lot of storage in the attic. Whistler Homes is a local custom builder that pride themselves on high quality construction. Owner is selling lot for $175,000. Buyer may choose Home and Land Package starting at $850,000. Whistler Homes will have a separate construction agreement with the buyer. Call Sarah today for more info!
-
4BEDS
-
5ACRES
-
2BATHS
-
11/2 BATHS
-
3000-3199SQFT
-
$274$/SQFT
School Information
Description
Offering a To Be Built +/-3100sqft home on 5 beautiful acres in Landrum! Plan features 4 bedrooms, 2.5 baths plus huge recreation room and a wonderful Terrace Level layout with the primary suite and primary living area on the main level along with 3 bedrooms, rec room, second living room, second deck, and tons of storage on the lower level. We will create the curb appeal showing off white Hardi plank siding with black windows and gutters, large front porch, and beautiful landscaping. The main level offers an open concept, wood flooring, fireplace with mantle, lots of windows, and large dining room. The Kitchen will be a knockout! Tons of close-soft cabinets and counter space, a massive eat-at island, stone counters, tile backsplash, farmhouse sink, and stainless-steel appliances. My personal favorite is the appliance closet/pantry with built-in shelving and extra outlets to keep appliances tucked away and the kitchen uncluttered. The massive upper deck off the main level is a peaceful haven overlooking the wooded lot and creek. The Primary Suite is on the main level and offers a vaulted ceiling, huge walk-in closet with built-in shelving, pocket door leading to the spa-like bathroom with frameless glass double head shower, beautiful tilework, dual vanity and water closet. The main level also offers a 1/2 bath and large laundry room. Downstairs, there is a second living room with a 3-panel full light glass door to the massive lower deck. The 3 additional bedrooms each have a walk-in closet and forest views. The Recreation room is huge and has a large closet as well. The guest bath offers a dual vanity and three-sided tile tub/shower combo. There is TONS of STORAGE with an unfinished mechanical room including the Tankless Water Heater for endless hot water but also a large 16x5 unfinished room off the leisure space. This room could easily be converted to a Wine Cellar or whatever your heart desires! There is also a lot of storage in the attic. Whistler Homes is a local custom builder that pride themselves on high quality construction. Owner is selling lot for $175,000. Buyer may choose Home and Land Package starting at $850,000. Whistler Homes will have a separate construction agreement with the buyer. Call Sarah today for more info!
Related Properties
© 2025 Greater Greenville Association of Realtors Multiple Listing Service. All rights reserved. IDX information is provided exclusively for consumers' personal, non-commercial use and may not be used for any purpose other than to identify prospective properties consumers may be interested in purchasing. Information is deemed reliable but is not guaranteed accurate by the MLS or Realty World of The Upstate. Data last updated 2025-11-14T10:01:21.89.
