Description
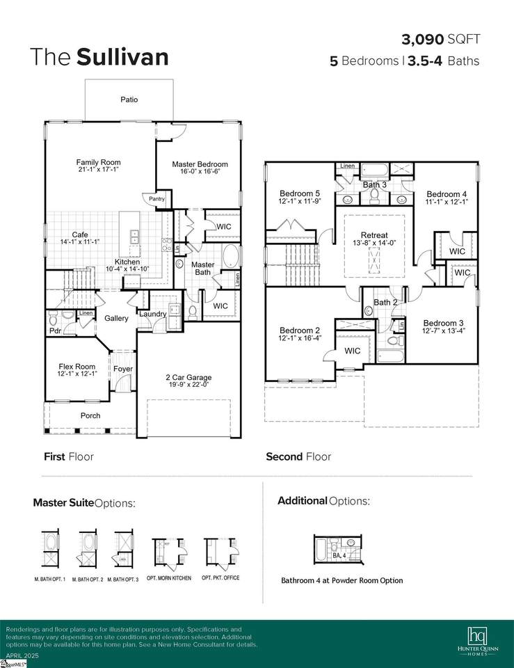
Welcome to The Sullivan, a beautifully designed 6 bedroom and 4 bath home boasting over 3,090 sq. ft. This plan is ideal for multi-generational living and space seekers alike and being built on an extraordinary home site that is over Half an Acre with a small Creek running behind it. This brand new construction is loaded with premium features, including: a Gourmet kitchen with quartz countertops, large double cabinet center island, Samsung appliances featuring a gas cooktop, wall oven/microwave and stainless steel hood vent. The Main-level Primary suite is convenient for everyday living, has 4 spacious bedrooms upstairs with Jack and Jill Bath as well as another Full Bath and Retreat for everyone to relax in. The Main-level Flex Room is being converted to a 6th bedroom with a Full Bathroom but could be used as a Home Office, or Formal Dining Room. This home features a 3 CAR GARAGE with Insulated Garage Doors, 8' 4 lite Glass Front Door, Arches throughout, and Tankless Water Heater. Behind the walls we build with the ZIP System® sheathing with taped streamlines to provide a water & air resistive barrier, Techshield, Overhangs, 30 year Architectural Shingles, Stone Accents, Mature Landscaping with Mulch (no pinestraw here!), Craftsman style Trim with 5 panel Doors and so much more. Semi custom home at almost tract builder pricing! AND...HOA Restrictions are very limited! Got a boat? Rv? Want a big building or Pool? No problem! HOA is for maintaining green spaces, detention ponds and maintenance. Schedule your private showing today and see why The Sullivan at South Park and Hunter Quinn Homes is the perfect place to call home! In addition, we have many other Buildable Plans and Neighborhoods around the Upstate, but very limited Home Sites of this size. We also offer Build on Your Lot options.
-
6BEDS
-
0.56ACRES
-
4BATHS
-
01/2 BATHS
-
3000-3199SQFT
-
$158$/SQFT
School Information
Description
Welcome to The Sullivan, a beautifully designed 6 bedroom and 4 bath home boasting over 3,090 sq. ft. This plan is ideal for multi-generational living and space seekers alike and being built on an extraordinary home site that is over Half an Acre with a small Creek running behind it. This brand new construction is loaded with premium features, including: a Gourmet kitchen with quartz countertops, large double cabinet center island, Samsung appliances featuring a gas cooktop, wall oven/microwave and stainless steel hood vent. The Main-level Primary suite is convenient for everyday living, has 4 spacious bedrooms upstairs with Jack and Jill Bath as well as another Full Bath and Retreat for everyone to relax in. The Main-level Flex Room is being converted to a 6th bedroom with a Full Bathroom but could be used as a Home Office, or Formal Dining Room. This home features a 3 CAR GARAGE with Insulated Garage Doors, 8' 4 lite Glass Front Door, Arches throughout, and Tankless Water Heater. Behind the walls we build with the ZIP System® sheathing with taped streamlines to provide a water & air resistive barrier, Techshield, Overhangs, 30 year Architectural Shingles, Stone Accents, Mature Landscaping with Mulch (no pinestraw here!), Craftsman style Trim with 5 panel Doors and so much more. Semi custom home at almost tract builder pricing! AND...HOA Restrictions are very limited! Got a boat? Rv? Want a big building or Pool? No problem! HOA is for maintaining green spaces, detention ponds and maintenance. Schedule your private showing today and see why The Sullivan at South Park and Hunter Quinn Homes is the perfect place to call home! In addition, we have many other Buildable Plans and Neighborhoods around the Upstate, but very limited Home Sites of this size. We also offer Build on Your Lot options.
© 2026 Greater Greenville Association of Realtors Multiple Listing Service. All rights reserved. IDX information is provided exclusively for consumers' personal, non-commercial use and may not be used for any purpose other than to identify prospective properties consumers may be interested in purchasing. Information is deemed reliable but is not guaranteed accurate by the MLS or Realty World of The Upstate. Data last updated 2026-03-16T00:01:16.507.
