Description
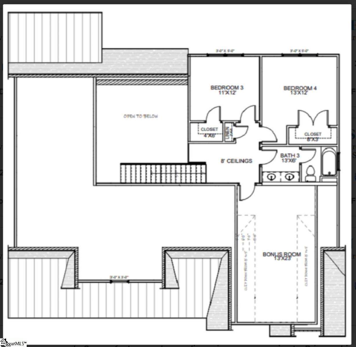
Welcome to Echo Grove, a premier new home community just 5 minutes from charming downtown Travelers Rest. Designed for comfort and ease, the Hampton Welcome to the Hampton Floorplan " Where Comfort Meets Style! Step into the thoughtfully designed Hampton, featuring a spacious open-concept layout perfect for modern living. The primary bedroom is conveniently located on the main level, offering privacy and ease with a luxurious ensuite bath. Enjoy a beautiful formal dining area, ideal for hosting dinners and special gatherings. The living room is both spacious and inviting, centered around a cozy fireplace"the perfect spot to relax and unwind. Upstairs, a versatile loft provides additional living space, great for a media room or playroom. You'll also find two additional bedrooms, upstairs, ideal for family or guests. Back on the main level, a guest bedroom offers flexibility"use it for visitors or transform it into a home office with a mountain view. Echo Grove prioritizes easy living with homes that include universal design elements like no-step entryways and walk-in showers, ideal for all stages of life. Beyond your doorstep, embrace the beauty of nature and convenience, with grocery stores, healthcare, and retail options just minutes away. The neighborhood itself offers low-maintenance outdoor spaces for relaxing or entertaining, and nearby access to recreational trails, fitness centers, and cultural venues makes it perfect for active lifestyles. Whether youre looking to stay connected to your community, enjoy peaceful solitude, or balance a bit of both, Echo Grove brings you the best of both worlds in an idyllic setting.
-
4BEDS
-
0.49ACRES
-
3BATHS
-
01/2 BATHS
-
2400-2599SQFT
-
$299$/SQFT
School Information
Description
Welcome to Echo Grove, a premier new home community just 5 minutes from charming downtown Travelers Rest. Designed for comfort and ease, the Hampton Welcome to the Hampton Floorplan " Where Comfort Meets Style! Step into the thoughtfully designed Hampton, featuring a spacious open-concept layout perfect for modern living. The primary bedroom is conveniently located on the main level, offering privacy and ease with a luxurious ensuite bath. Enjoy a beautiful formal dining area, ideal for hosting dinners and special gatherings. The living room is both spacious and inviting, centered around a cozy fireplace"the perfect spot to relax and unwind. Upstairs, a versatile loft provides additional living space, great for a media room or playroom. You'll also find two additional bedrooms, upstairs, ideal for family or guests. Back on the main level, a guest bedroom offers flexibility"use it for visitors or transform it into a home office with a mountain view. Echo Grove prioritizes easy living with homes that include universal design elements like no-step entryways and walk-in showers, ideal for all stages of life. Beyond your doorstep, embrace the beauty of nature and convenience, with grocery stores, healthcare, and retail options just minutes away. The neighborhood itself offers low-maintenance outdoor spaces for relaxing or entertaining, and nearby access to recreational trails, fitness centers, and cultural venues makes it perfect for active lifestyles. Whether youre looking to stay connected to your community, enjoy peaceful solitude, or balance a bit of both, Echo Grove brings you the best of both worlds in an idyllic setting.
© 2025 Greater Greenville Association of Realtors Multiple Listing Service. All rights reserved. IDX information is provided exclusively for consumers' personal, non-commercial use and may not be used for any purpose other than to identify prospective properties consumers may be interested in purchasing. Information is deemed reliable but is not guaranteed accurate by the MLS or Realty World of The Upstate. Data last updated 2025-11-10T14:01:51.32.
