Description
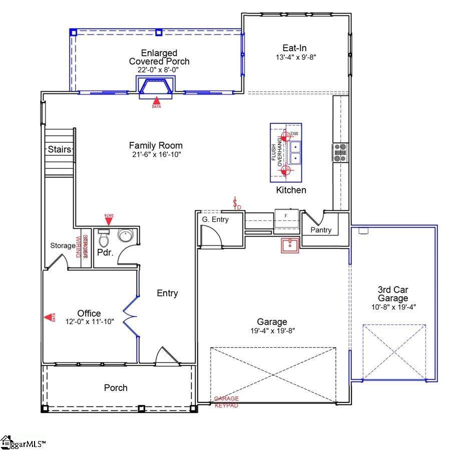
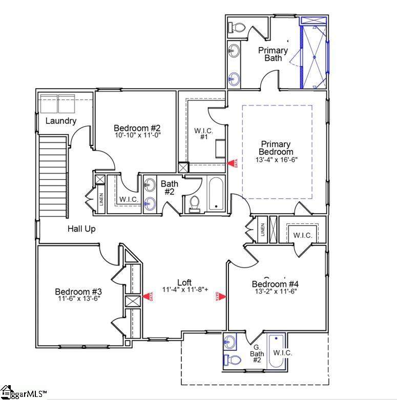
Welcome to Homesite 97 at Ridgecrest in Anderson County, SC, where the beautifully crafted Roanoke floor plan offers timeless craftsman-style architecture and modern comfort—situated on a generous .49-acre homesite with no HOA. This expansive 2,719-square-foot home features four bedrooms, two-and-a-half bathrooms, a stylish office with French doors, a spacious loft, and a three-car garage, delivering both flexibility and functionality for everyday living. The main level welcomes you with a dedicated home office, followed by a bright and airy open-concept layout where the gourmet kitchen flows seamlessly into the great room, complete with a cozy gas fireplace. The kitchen is a chef’s dream, showcasing a large center island, quartz countertops, upgraded cabinetry, gas cooktop, and in-wall oven and microwave, all accented by sleek stainless steel appliances. Upstairs, the private primary suite offers a tranquil escape with boxed ceilings, two spacious walk-in closets, and a luxurious en-suite bathroom featuring an expansive tiled walk-in shower. Three additional bedrooms, a full bath, a generous loft space, and a conveniently located laundry room complete the second floor. Out back, enjoy the peace and privacy of your enlarged covered porch, ideal for outdoor dining, entertaining, or relaxing year-round. With its .49-acre lot, three-car garage, premium finishes, and versatile layout, this home delivers the perfect balance of space, style, and freedom—just minutes from shopping, dining, schools, and Lake Hartwell access. Come experience luxury living with room to breathe in the Roanoke plan at Ridgecrest today! Call today for an appointment!
-
4BEDS
-
0.49ACRES
-
3BATHS
-
11/2 BATHS
-
2600-2799SQFT
-
$186$/SQFT
School Information
Description
Welcome to Homesite 97 at Ridgecrest in Anderson County, SC, where the beautifully crafted Roanoke floor plan offers timeless craftsman-style architecture and modern comfort—situated on a generous .49-acre homesite with no HOA. This expansive 2,719-square-foot home features four bedrooms, two-and-a-half bathrooms, a stylish office with French doors, a spacious loft, and a three-car garage, delivering both flexibility and functionality for everyday living. The main level welcomes you with a dedicated home office, followed by a bright and airy open-concept layout where the gourmet kitchen flows seamlessly into the great room, complete with a cozy gas fireplace. The kitchen is a chef’s dream, showcasing a large center island, quartz countertops, upgraded cabinetry, gas cooktop, and in-wall oven and microwave, all accented by sleek stainless steel appliances. Upstairs, the private primary suite offers a tranquil escape with boxed ceilings, two spacious walk-in closets, and a luxurious en-suite bathroom featuring an expansive tiled walk-in shower. Three additional bedrooms, a full bath, a generous loft space, and a conveniently located laundry room complete the second floor. Out back, enjoy the peace and privacy of your enlarged covered porch, ideal for outdoor dining, entertaining, or relaxing year-round. With its .49-acre lot, three-car garage, premium finishes, and versatile layout, this home delivers the perfect balance of space, style, and freedom—just minutes from shopping, dining, schools, and Lake Hartwell access. Come experience luxury living with room to breathe in the Roanoke plan at Ridgecrest today! Call today for an appointment!
Related Properties
© 2026 Greater Greenville Association of Realtors Multiple Listing Service. All rights reserved. IDX information is provided exclusively for consumers' personal, non-commercial use and may not be used for any purpose other than to identify prospective properties consumers may be interested in purchasing. Information is deemed reliable but is not guaranteed accurate by the MLS or Realty World of The Upstate. Data last updated 2026-04-13T17:02:23.093.
