Description
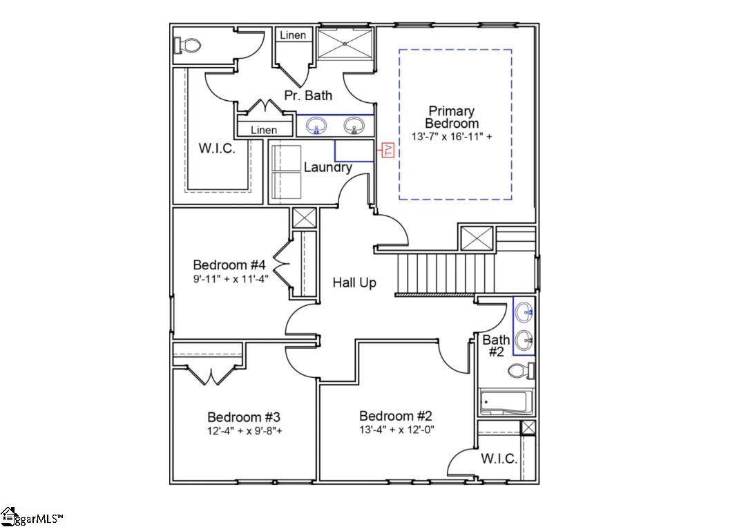
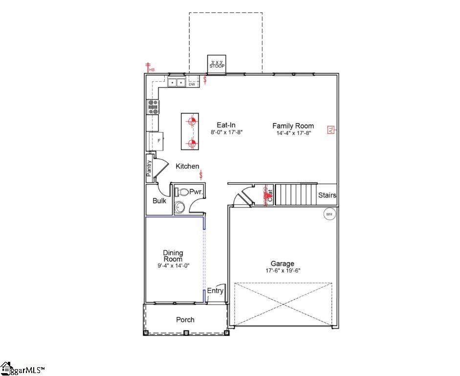
This Lancaster floorplan is a thoughtfully designed two-story home that includes 4 bedrooms and 2.5 bathrooms. Just of the entry of the home your dining room awaits and is perfect for those family meals and gatherings. As you make your way through the home you enter the stylish kitchen, which boasts Shaker-style cabinets, granite countertops, gas range and a tile backsplash. The open-concept design connects the kitchen to the spacious great room, making it perfect for entertaining. Upstairs, the primary bedroom leads to a primary bathroom with two linen closets, access to a oversized walk-in closet. The laundry room is conveniently located just outside the primary bedroom, close to the three spare bedrooms and their full bathroom. Nestled just a stones throw from Linville Hills Park and surrounded by mature trees, this home offers the perfect blend of tranquility and convenience. Located just minutes from Downtown Spartanburg, Braxton Place provides easy access to shopping, schools, hospitals, and major highways, including I-26 and I-85. Residents are also zoned for the highly sought-after Dorman High School and are just 1.2 miles from R.P. Dawkins Middle School.
-
4BEDS
-
0.11ACRES
-
2BATHS
-
11/2 BATHS
-
2000-2199SQFT
-
$128$/SQFT
School Information
Description
This Lancaster floorplan is a thoughtfully designed two-story home that includes 4 bedrooms and 2.5 bathrooms. Just of the entry of the home your dining room awaits and is perfect for those family meals and gatherings. As you make your way through the home you enter the stylish kitchen, which boasts Shaker-style cabinets, granite countertops, gas range and a tile backsplash. The open-concept design connects the kitchen to the spacious great room, making it perfect for entertaining. Upstairs, the primary bedroom leads to a primary bathroom with two linen closets, access to a oversized walk-in closet. The laundry room is conveniently located just outside the primary bedroom, close to the three spare bedrooms and their full bathroom. Nestled just a stones throw from Linville Hills Park and surrounded by mature trees, this home offers the perfect blend of tranquility and convenience. Located just minutes from Downtown Spartanburg, Braxton Place provides easy access to shopping, schools, hospitals, and major highways, including I-26 and I-85. Residents are also zoned for the highly sought-after Dorman High School and are just 1.2 miles from R.P. Dawkins Middle School.
Related Properties
© 2025 Greater Greenville Association of Realtors Multiple Listing Service. All rights reserved. IDX information is provided exclusively for consumers' personal, non-commercial use and may not be used for any purpose other than to identify prospective properties consumers may be interested in purchasing. Information is deemed reliable but is not guaranteed accurate by the MLS or Realty World of The Upstate. Data last updated 2025-11-14T09:01:16.123.
